Baugrundstücke für Ihr Eigenheim in Bad Gottleuba-Berggießhübel
Objektbeschreibung
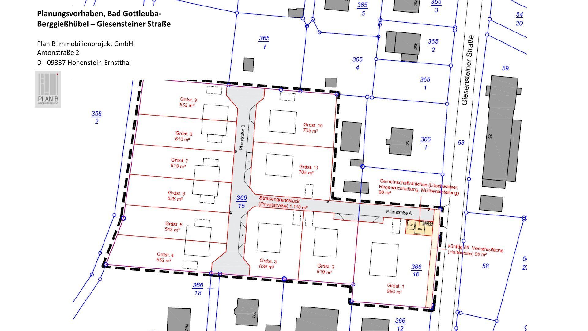
Angeboten werden verschiedene Baugrundstücke in Bad Gottleuba-Berggießhübel in ruhiger Lage mit Blick in die Sächsische Schweiz. Alle Grundstücke sind vollerschlossen und können kurzfristig bebaut werden. Die Größen variieren von 520 - 990 m² bei einem Quadratmeterpreis von 195 €. Geeignet sind die Grundstücke für die Bebauung mit einem Einfamilienhaus oder einer Doppelhaushälfte. Die Parzellierung finden Sie auf dem Plan. Eine Bebauung ist nur gemäß der im Plan vorgenommenen Aufteilung möglich. Im Anhang finden Sie den Bebauungsplan für das neuerschlossene Wohngebiet inkl. der weiteren Grundstücke.
Sichern Sie sich ihr Wunschgrundstück für die Erfüllung der eigenen Wohnträume. Sollten Sie Fragen zur Baufinanzierung oder zur Planung Ihres Eigenheims haben, wenden Sie sich bitte vertrauensvoll an unseren Partner der Globales Immobilien & Finanzen. Die Ansprechpartner stehen Ihnen gern zur Verfügung.
Lage
Bad Gottleuba-Berggiesshübel ist ein idyllischer Kurort in der Nähe von der Sächsischen Schweiz. Das knapp 90 Quadratkilometer große Gemeindegebiet von Bad Gottleuba-Berggießhübel liegt etwa 45 Kilometer südöstlich vom Zentrum der sächsischen Landeshauptstadt Dresden. Es umfasst weite Teile des mittleren Gottleubatales sowie Teile der Einzugsgebiete von Bahia, Seidewitz und Bahre.
